














Reference :
83555
Type d'habitation :
House
Type :
Independent studio
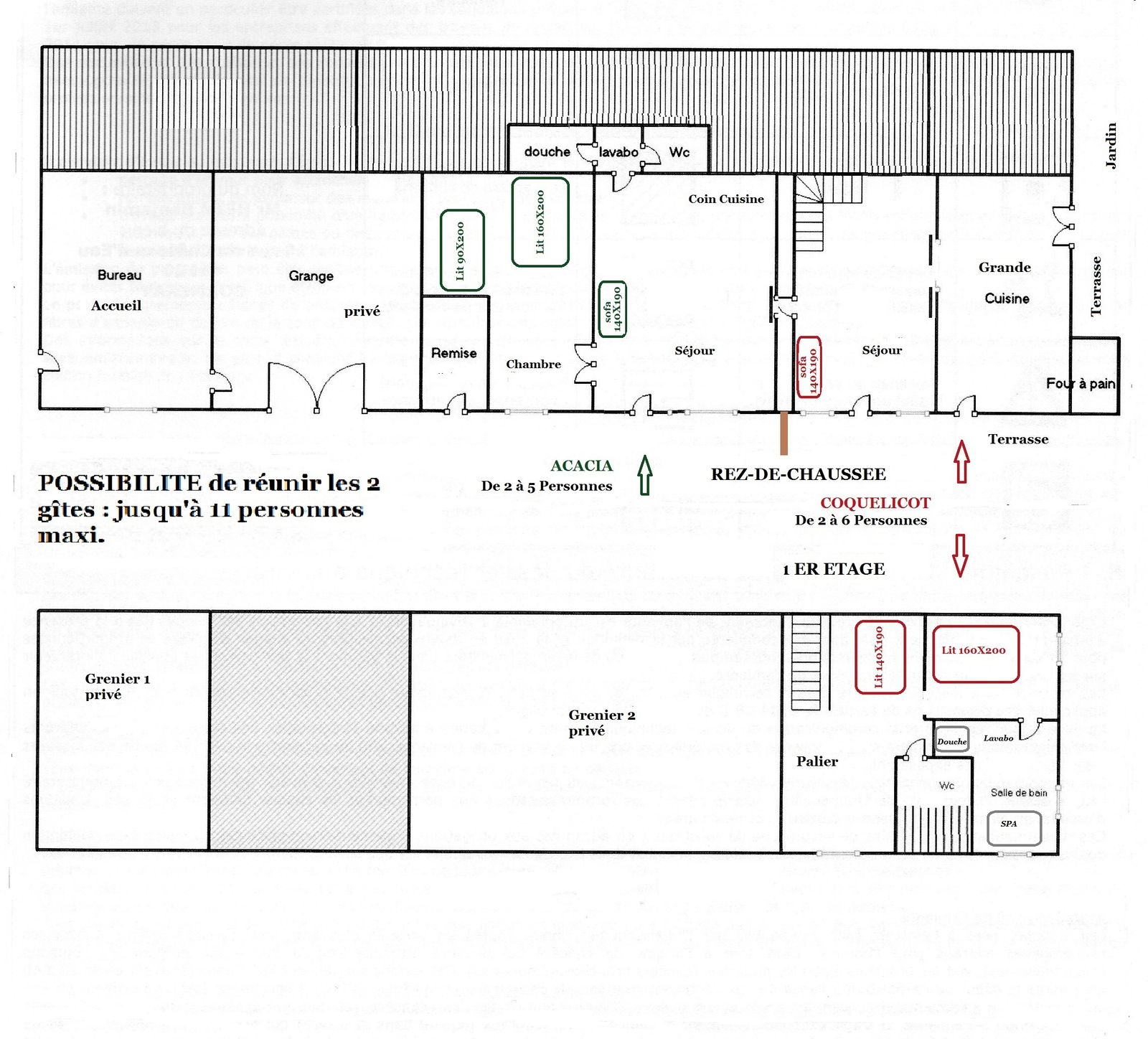
Accommodation capacity:
6 Person(s)
Number of rooms:
1
Duration
Between 2 nights and 1 month
Security deposit :
£448
Cleaning Fee:
£54

Identify :
Verified by Roomlala
Lives in:
CORMERAY (France)
Age :
65 years
Host since:
2014
Cormeray, France
The exact address is communicated only when the reservation is confirmed.
Request for information
You must fill in your dates to send the request!
The dates entered are invalid!
The end date has been moved
You must fill in the object of your request!
You must fill in your year of birth!
You must fill in your situation!
Please write a message to the landlord of the ad explaining the reason for your stay
Log in to send your request for information.
The ad you are trying to contact is no longer active, please contact other ads.
The start date of the rental has passed.
The end date of the lease is past or before the lease start date.
The number of people selected is not consistent with the housing capacity.
The message for the landlord of the accommodation is empty, please explain the reasons for your stay.
The number of people selected is too high compared to the capacity of the accommodation.
The minimum duration in this accommodation is not valid. Please change your dates.
The maximum duration in this accommodation is not valid. Please change your dates.
Please note that you cannot make a request on one of your ads.
You have already contacted this landlord recently. Please try again after 48 hours to give them time to answer.
The accommodation is not available for these dates, your request was therefore not sent. Please change your dates or check out other ads in the meantime.

Homestay | 5 space(s)
Blois at Anne
5.6 Mi
Philosophy of the place: well-being, respect, permaculture, and good manners. Very quiet house located on the left bank of the Blois River. It's the countryside in the city. A serene atmosphere conducive to rest or work in this shared apartment, mainly composed of working people. A few tourists also pass by occasionally. There are four bedrooms. You can be alone or, on the contrary, interact with those who wish. Very often, you don't run into anyone. The place is also ideal for business trips, internships, training courses, fixed-term contracts, trial periods, etc., but not for inactive people who would stay here all day. However, be careful when working remotely, making phone calls, and listening to sound in general (music, video, etc.): the partitions separating the rooms are not soundproofed like building walls. To fully enjoy the peace and quiet of the place, you will have to respect it yourself, of course :) No pets.

Homestay | 1 space(s)
Blois at Helene
6.7 Mi
I also live in the house with Urrios the English bulldog, Babouche the Siamese cat, and Marcel, the second cat, who may come looking for petting... or not. They are sociable, like their owner, but know how to be discreet if you wish. A bus stop is located at the end of the cul-de-sac. The house is close to the hotel and catering schools and Camille Claudel. A supermarket and a lake are 200 meters away. A swimming pool is available when the weather permits. Like the rest of the house, it is shared with me. Free parking is available. The house is fully secure and has home automation. The house is non-smoking. The rent is eligible for housing benefit (APL).

Homestay | 2 space(s)
Seur at Valerie
2.8 Mi
Furnished room for rent on the upper floor of our home. All mod cons. Weekly or monthly... You have a shared kitchen. Check-in is by 10:00 PM at the latest, but I don't accept check-ins after that. Cleaning is required in the common areas and the room. You can request cleaning products. Shower gel, shampoo, and toilet paper are not included.

Homestay | 2 space(s)
Seur at Valerie
2.8 Mi
Furnished room for rent with all mod cons. Separate entrance. Kitchenette, bathroom, bedroom with TV. Check-in until 10:00 PM on the day of arrival. I do not accept check-ins after this date. Cleaning is required in the common areas and the room. Cleaning products are available upon request. Shower gel, shampoo, and toilet paper are not included.

Homestay | 1 space(s)
Candé-sur-Beuvron at Stéphane
5.2 Mi
Rooms for students or apprentices Located in the countryside, this room offers a place to recharge your batteries in a quiet and peaceful environment. At the rear of the house, a terrace equipped with garden furniture and a barbecue is at your disposal. The private room is located on the first floor of the house. A kitchen, a TV lounge, and a bathroom, also located on the first floor, are shared with another possible rental room. For those who would like more information or additional photos, please do not hesitate to contact me. The accommodation is entered through the main door of the house. Amenities include: - Reversible air conditioning - Wi-Fi access For the security of your vehicle, a space in the courtyard is available, and your bicycle can be stored in the garage.

Homestay | 1 space(s)
Chailles at Frédéric
4.4 Mi
It is equipped with a fridge, microwave and TV. This room is 400 m from an Intermarché and bus stop. The house has an alarm system with surveillance cameras. It is equipped with fiber. Strictly no smoking in the rooms even with the window open. We have animals, dogs, cats and an octodon. Outside we have an Ouessant ram, a half-dwarf goat, geese, hen, rooster and turtle.